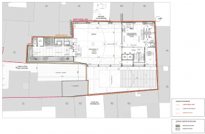
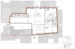
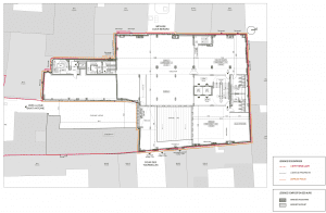
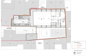
Saint-Antoine

From the street to the courtyard, Saint-Antoine is a transition between the city and the business. This multifaceted address offers a retail space that can accommodate a trendy shop or a café  where employees and neighbors mingle. The courtyard, conceived as a real place of transition between interior and exterior, constitutes a link between the offices and the neighborhood, an light filled atrium where people share and exchange. It is designed to be energizing and conducive to sharing thoughts and ideas.

tel aviv apartment for rent: tel aviv apartment for rent

An Urban Refuge
in the Heart of the Marais

Features

  • Total Size

    4 100 m2

  • Outdoor

    more than 350 m2 of outdoor spaces (courtyard, terraces, rooftop)

  • Natural LIght

    Numerous glass roofs as well as the 40 windows on each level.

  • Location

    2 addresses, 2 accesses: Extremely well located: in the Marais district, near Bastille

  • Mixed use

    The renovation programme includes 5 residential apartments situated over the passage.

  • Retail

    A street level retail place ideal for a place to meet and socialise

  • Accessibility

    Fully accessible to wheelchairs

Pricing

  • Target
    Net Annual Rental Income

    € 3.1 Mil.

    (based on € 750 per meter/year)

  • Estimated
    Capitalization Rate

    3.15%

  • Estimated
    Target Price

    € 94 mil.

    (net seller)

  • Estimated
    Transaction Fees and Levies

    € 4 mil.

    Notary Fee, Stamp Duties and Advisory

2021©thetelavivi.com™ all rights reserved

Leave your details below and we'll talk soon.

Privacy Policy and Terms of Service apply.
Tel Aviv Real Estate

luxury real estate israel

luxury real estate israel

luxury real estate israel

luxury real estate israel
luxury real estate israel

luxury real estate israel

luxury real estate israel

real estate israel

real estate israel

real estate israel

real estate israel
real estate israel

real estate israel

real estate israel

real estate in tel aviv

real estate in tel aviv

real estate in tel aviv

real estate in tel aviv
real estate in tel aviv

real estate in tel aviv

real estate in tel aviv

real estate homes

real estate homes

real estate homes

real estate homes
real estate homes

real estate homes

real estate homes

luxury homes in israel

luxury homes in israel

luxury homes in israel

luxury homes in israel
luxury homes in israel

luxury homes in israel

luxury homes in israel

luxury homes

luxury homes

luxury homes

luxury homes
luxury homes

luxury homes

luxury homes

real estate property

real estate property

real estate property

real estate property
real estate property

real estate property

real estate property

real estate tel aviv israel

real estate tel aviv israel

real estate tel aviv israel

real estate tel aviv israel
real estate tel aviv israel

real estate tel aviv israel

real estate tel aviv israel

real estate houses

real estate houses

real estate houses

real estate houses
real estate houses

real estate houses

real estate houses

real estate apartments

real estate apartments

real estate apartments

real estate apartments
real estate apartments

real estate apartments

real estate apartments

luxury houses in israel

luxury houses in israel

luxury houses in israel

luxury houses in israel
luxury houses in israel

luxury houses in israel

luxury houses in israel

real estate real estate real estate

real estate real estate real estate

real estate real estate real estate

real estate real estate real estate
real estate real estate real estate

real estate real estate real estate

real estate real estate real estate

the home apartments tel aviv

the home apartments tel aviv

the home apartments tel aviv

the home apartments tel aviv
the home apartments tel aviv

the home apartments tel aviv

the home apartments tel aviv

real estate in

real estate in

real estate in

real estate in
real estate in

real estate in

real estate in

real estate real estate

real estate real estate

real estate real estate

real estate real estate
real estate real estate

real estate real estate

real estate real estate

luxury estates

luxury estates

luxury estates

luxury estates
luxury estates

luxury estates

luxury estates

luxury homes tel aviv

luxury homes tel aviv

luxury homes tel aviv

luxury homes tel aviv
luxury homes tel aviv

luxury homes tel aviv

luxury homes tel aviv

a real estate

a real estate

a real estate

a real estate
a real estate

a real estate

a real estate

a properties real estate

a properties real estate

a properties real estate

a properties real estate
a properties real estate

a properties real estate

a properties real estate

the luxury estate

the luxury estate

the luxury estate

the luxury estate
the luxury estate

the luxury estate

the luxury estate

property type

property type

property type

property type
property type

property type

property type

real properties

real properties

real properties

real properties
real properties

real properties

real properties

luxury homes real estate

luxury homes real estate

luxury homes real estate

luxury homes real estate
luxury homes real estate

luxury homes real estate

luxury homes real estate

luxury housing

luxury housing

luxury housing

luxury housing
luxury housing

luxury housing

luxury housing

apartment luxury

apartment luxury

apartment luxury

apartment luxury
apartment luxury

apartment luxury

apartment luxury